
| L. A. Ornamental & Rack Corp 3708 NW 82nd Street Miami, Florida 33147 Office: 305-696-0419 Fax: 305-696-0419 |

|
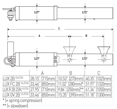
| |||||||||||||||
| A MODEL FOR EVERY NEED •Several versions available: with slowdown, internal positive stops, longer stroke. All of them are irreversible. SAFE USE •Crushing prevention guaranteed by two adjustable bypass valves. These 120 volt hydraulic linear arms will give full satisfaction and will smoothly operate any gate up to 700 pounds per leaf. Special features: • Opening angles of 120 degrees • Irreversible (cannot be opened manually when motor is engaged) • Easy manual release in case of power failure • Opening and closing: 17 seconds (30 seconds on larger model) • Adjustable working time from LCD panel control board • Rated up to 500 opening and closing cycles per day • Six different models to ensure that all application and installation scenarios are met • Optional internal positive stops available on some operators: no need for external stops on the driveway • Optional thermostatically controlled heater available to ensure smooth operation in colder climates • Install a complete pre-wired electrical enclosure box to further improve aesthetics and add many optional entry and safety systems all in one confined lockable enclosure box • Hydraulic adjustable torque setting. • Electronic obstruction detection device from the control panel. • Adjustable slow-down on opening and closing. |


| About Us | Contact Us | Our Policies | FAQ | Manufactures | Links | Copyright Protected 2004-2008 - L. A. Ornamental & Rack Corp. All rights reserved. No part of this site can be reproduced in any form or by any means, electronic, mechanical, photocopying, or otherwise without prior written consent of L. A. Ornamental & Rack Corp. 3708 NW 82nd Street Miami Florida 33147, Office: 305-696-0419 Fax: 305-696-0461 E-Mail: LAOrnamental@Aol.com |

| Technical Features LUX BT LUX G BT Control panel LIBRA CLX LIBRA CLX Reversible/irreversible operator irreversible irreversible Power supply 24 V 24 V Absorbed power 0.4 hp (300W) 0.4 hp (300W) Thermal protection integrated integrated Rod working stroke 10.6” (270 mm) 15.4” (392 mm) Rod speed 0.55 ips (14 mm/s) 0.55 ips (14 mm/s) Opening and Closing Time 14 s 20 s Slowdown - - Impact Reaction hydraulic clutch hydraulic clutch Lock hydraulic opening/closing hydraulic opening/closing Manual Release release key release key Operating cycle intensive use intensive use Environmental conditions from 5°F (-15°C) to 140°F (+60°C) from 5°F (-15°C) to 140°F (+60°C) Degree of protection IP55 IP55 Operator weight 19 lbs (~8,7 kg) 19 lbs (~8,7 kg) Dimensions see below see below |